性能规范
• 公称压力:1.0MPa
• 强度试验:1.5MPa
• 密封试验:1.1 MPa
• 阀门主体材料:CF8(P)、CF3(PL)、CF8M(R)、CF3M(RL)
• 适用介质:水、蒸汽、油、硝酸类、醋酸类
• 适用雪貂:-29℃-150
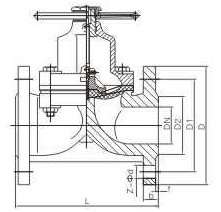
产品结构


主要外形尺寸
G81F
DN | L | D | H |
10 | 108 | 25 | 93.5 |
15 | 108 | 34 | 93.5 |
20 | 118 | 50.5 | 111.5 |
25 | 127 | 50.5 | 111.5 |
32 | 146 | 50.5 | 144.5 |
40 | 146 | 50.5 | 144.5 |
50 | 190 | 64 | 167 |
65 | 216 | 91 | 199 |
G61F
DN | L | A | B | H |
10 | 108 | 12 | 1.5 | 93.5 |
15 | 108 | 18 | 1.5 | 93.5 |
20 | 118 | 22 | 1.5 | 111.5 |
25 | 127 | 28 | 1.5 | 111.5 |
32 | 146 | 34 | 1.5 | 144.5 |
40 | 146 | 40 | 1.5 | 144.5 |
50 | 190 | 52 | 1.5 | 167 |
65 | 216 | 70 | 2.0 | 199 |
法兰连接
公称直径 | 尺寸(MM) | |||||
L | D | D1 | D2 | b-f | z-Φd | |
DN15 | 125 | 95 | 65 | 45 | 14-2 | 4-Φ14 |
DN20 | 135 | 105 | 75 | 55 | 14-2 | 4-Φ14 |
DN25 | 145 | 115 | 85 | 65 | 14-2 | 4-Φ14 |
DN32 | 160 | 135 | 100 | 78 | 16-2 | 4-Φ18 |
DN40 | 180 | 145 | 110 | 85 | 16-3 | 4-Φ18 |
DN50 | 210 | 160 | 125 | 100 | 16-3 | 4-Φ18 |
DN65 | 250 | 180 | 145 | 120 | 18-3 | 4-Φ18 |
DN80 | 300 | 195 | 160 | 135 | 20-3 | 8-Φ18 |
DN100 | 350 | 215 | 180 | 155 | 20-3 | 8-Φ18 |
DN125 | 400 | 245 | 210 | 185 | 22-3 | 8-Φ18 |
DN150 | 455 | 285 | 240 | 212 | 22-2 | 8-Φ22 |
DN200 | 570 | 340 | 295 | 268 | 24-2 | 12-Φ22 |
DN250 | 680 | 405 | 355 | 320 | 26-2 | 12-Φ26 |
DN300 | 790 | 460 | 410 | 378 | 28-2 | 12-Φ26 |
螺纹连接
公称直径 | 尺寸(MM) | ||
L | G | SW | |
DN8 | 50 | 1/4 | 22 |
DN10 | 50 | 3/8 | 22 |
DN15 | 65 | 1/2 | 26 |
DN20 | 85 | 3/4 | 32 |
DN25 | 110 | 1 | 39 |
DN32 | 120 | 1-1/4 | 48 |
DN40 | 140 | 1-1/2 | 55 |
DN50 | 165 | 2 | 68 |
DN65 | 203 | 2-1/2 | 84 |
DN80 | 254 | 3 | 98 |
